Les réacteurs à eau sous pression
Les contrôles non destructifs réalisés sur les cuves au titre du suivi en exploitation
28/01/2013
Les contrôles non destructifs pratiqués en France sur les cuves visent à détecter des défauts et à surveiller leur évolution potentielle en service. Ces examens viennent en complément de l’épreuve hydraulique réglementaire réalisée à 206 bars selon une périodicité décennale.
Pour les viroles de coeur, les contrôles sont de plusieurs types :
- l'examen télévisuel de 100 % de la surface interne de la cuve, avec enregistrement des images, à l'aide de caméras embarquées sur la machine d'inspection en service (MIS) : cet examen est pratiqué depuis la fin des années 70 lors de la visite complète initiale ainsi que lors de la première visite complète qui a lieu au plus tard 30 mois après la première épreuve hydraulique du circuit primaire, puis lors des visites décennales. Il vise à déceler des désordres visibles en surface (chocs, usure, arrachements de métal...)
- l'examen par ultrasons des soudures des viroles : il s'agit d'un examen volumique réalisé sur toute l'épaisseur des soudures qui concerne le métal déposé ainsi que la zone adjacente du métal de base de part et d'autre sur une distance de 50 mm. L'examen vise à détecter des défauts perpendiculaires à la paroi interne de la cuve, mais aussi des défauts parallèles. Cet examen est pratiqué depuis la fin des années 70 suivant la même périodicité que les examens télévisuels
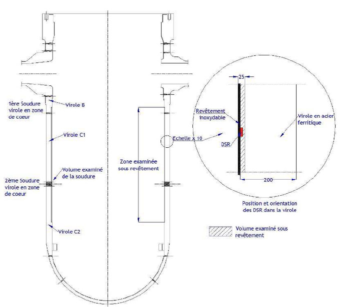
- l'examen en zone de coeur est destiné à rechercher des défauts sous revêtement (DSR). Il est pratiqué sur le parc depuis 1999, à l'occasion des visites décennales des réacteurs, avec une méthode de contrôle qualifiée ; il concerne toutes les soudures et toute la paroi interne des viroles située dans les parties les plus irradiées de la cuve, sur les 25 premiers millimètres d’épaisseur à partir de la paroi interne de la cuve. Cette zone correspond en effet à la zone susceptible de présenter des DSR et est la plus sensible à l’irradiation. Ces contrôles ont mis en évidence la trentaine de défauts de type DSR évoqués précédemment.
Cet examen n’est pas destiné à rechercher des DDH en profondeur, mais il aurait détecté des DDH éventuellement présents dans la zone d’enregistrement. Les parties examinées par ultrasons en zone de coeur sont présentées sur la figure ci-dessous.

Figure 5 : zone de coeur contrôlée par ultrasons.
Conclusion
Les informations disponibles, qui sont résumées ci-dessus, ne conduisent pas à suspecter la présence sur des cuves du parc électronucléaire français de défauts de fabrication en nombre et dimensions analogues à ceux découverts sur la cuve du réacteur n° 3 de Doel. Les défauts sous revêtement détectés en nombre limité sur quelques cuves sont bien identifiés et leur absence de nocivité a fait l'objet d'analyses mécaniques de justification détaillées. Ils sont surveillés périodiquement en service et aucune évolution de ces défauts n'a été constatée.
En tout état de cause, l’IRSN tirera les enseignements de l’événement détecté en Belgique et proposera à l’ASN les dispositions qui pourraient s’avérer nécessaires pour les réacteurs du parc français, par exemple en termes de contrôle volumique des viroles de cuve. Ce retour d’expérience portera également sur les différences de méthodes de fabrication et de contrôles entre les différents pays.